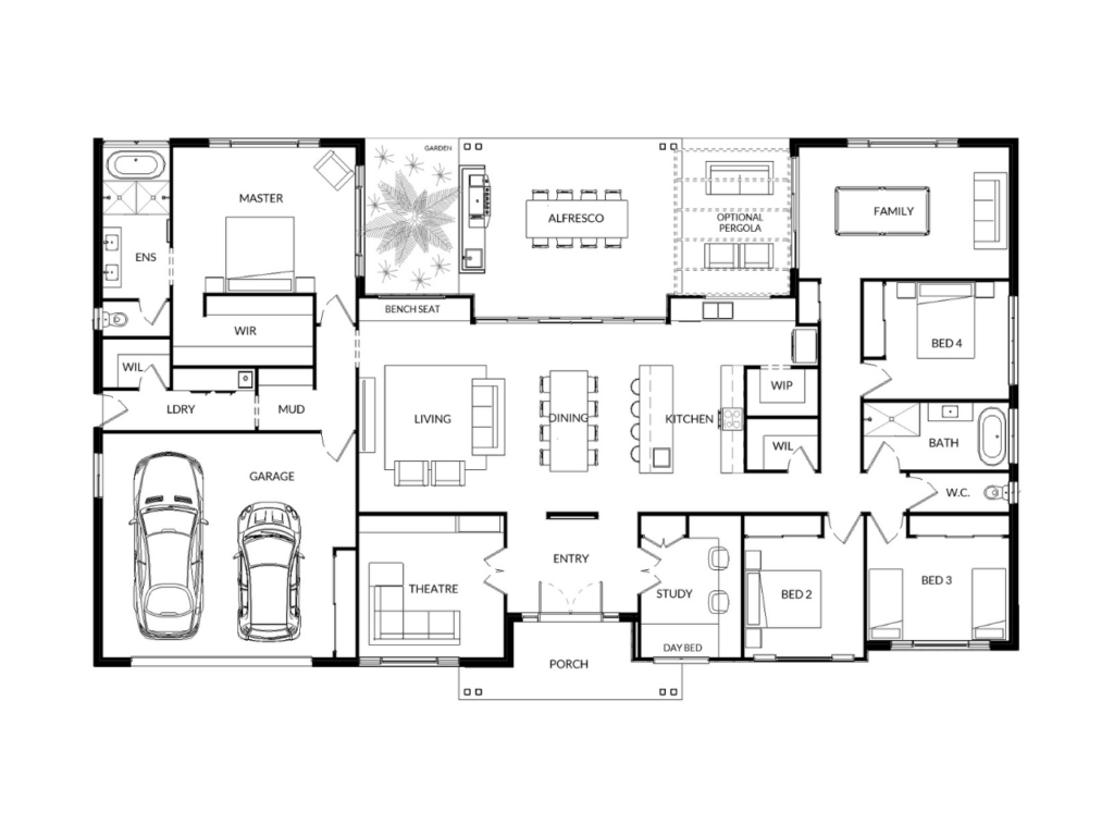
APEX

Versatile Four Bedroom Home

331m²
Large open plan with a beautiful alfresco and the opportunity to add an outdoor kitchen.

WILBY

House Size: 219 M²

TARNOOK

House Size: 221.8 M²

ESKDALE

House Size: 225.5 M²

View More Plans..

Download Our Free Guide

Hesitant to start building? Download our free guide “The 6 Most Common Fears About Building a New Custom Home”